site 143.30 m2

building 366.94 m2

year 2012

ground floor plan






first floor plan







second floor plan







third floor plan







roof plan







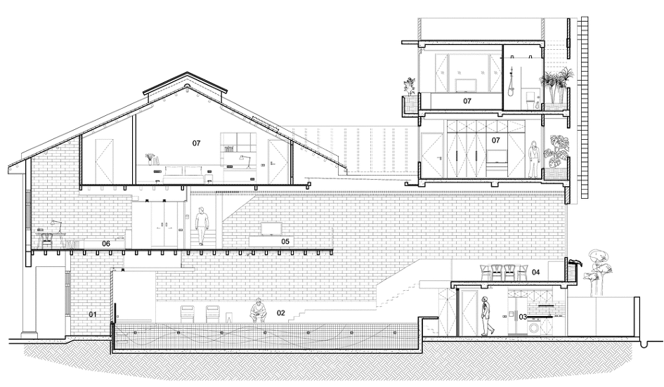
section







section















http://www.farm.sg/


http://www.kdarchitects.net/


http://www.dezeen.com/2012/09/19/pool-shophouse/